Louise & Richard Guy Hut - Conceptual Drawings

 

Picturing a New Hut on the Wapta

A backcountry hut at Mt. des Poilus has been in the works, in one form or another, for more than 20 years. This past year has seen a number of milestones for this project including approval from Yoho Park, completion of all required environmental impact assessments, the hut naming and a major fundraising campaign.

Slated for construction this summer, there has been an enormous amount of work going on behind the scenes getting everything ready for building. In addition, the ACC is continuing to seek support for this $500,000 capital campaign to build the brand new Louise & Richard Guy Hut.

Richard and Louise at Mt. Assiniboine.

Richard and Louise at Mt. Assiniboine.

Thank you. Due to the generous donations of so many, we’re one step closer to expanding the largest network of backcountry huts in North America. The ACC is very close to reaching our goal of $500,000 to build the Richard & Louise Guy Hut at Mont des Poilus, but we still need your help!

Please help us to the summit by making a donation today.

Donate Now


Building Excitement

We're starting to get really excited now as this project moves from the planning stage to the building stage. Our preparations are ramping up on a number of fronts and we're getting our ducks in a row on everything from building the furniture in our shop in Canmore to planning the meals for the work crews. We're going to be updating our community on the progress between now and July when the on-site work begins and then trying to provide ongoing reports on the build once it starts.

Today, we’re very happy to be able to share the conceptual drawings of the hut.

Exterior – Front of Hut

Louise & Richard Guy Hut – Exterior Front View.

Louise & Richard Guy Hut – Exterior Front View.

The drawing above is the front side of the hut, showing the two-story structure. The hut will be built on a concrete foundation, raised above the rocky terrain of the des Poilus shoulder.

The area to the right on this drawing is the outhouse, which will be accessed from the same covered deck as the front door. You’ll also notice wind turbines on poles above the hut, a first for an ACC facility.

The hut will include the most advanced building technology of any hut we've ever built, including structurally insulated panels for the walls, an air-tight design to minimize energy consumption and solar and wind power generation. The idea is to build a hut that minimizes our environmental footprint at every stage - from the construction to the long term occupancy.

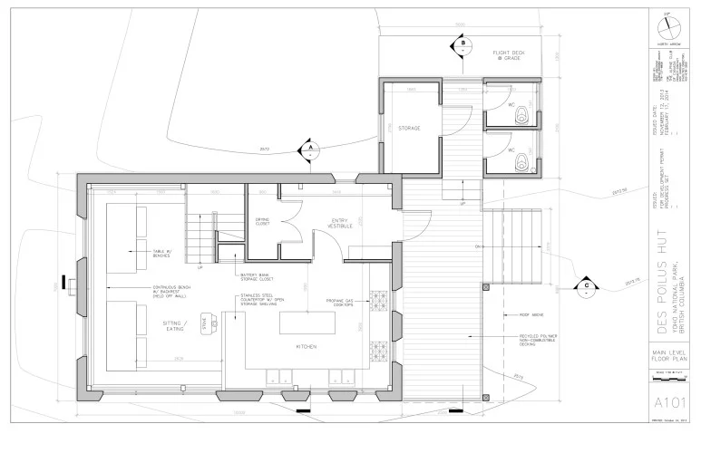
Interior – Main Floor

Louise & Richard Guy Hut – Main Floor.

Louise & Richard Guy Hut – Main Floor.

The main floor of the hut will be approximately 950 square feet in size with a kitchen, seating/eating areas, propane heater and stairs to the upper level. The entrance vestibule area will have a dedicated drying closet. The hut will be equipped with similar amenities to our other huts, including propane cooktops, cooking and eating utensils and tables and benches. The south side of the hut (bottom of drawing) will have large windows to let in natural light and take advantage of the spectacular views and passive solar gain.

Interior – Upper Floor

Louise & Richard Guy Hut – Upper Floor.

Louise & Richard Guy Hut – Upper Floor.

The upper floor will provide sleeping for 18 people on four raised sleeping platforms. There is an emergency exit ladder and windows on the south side for natural light.

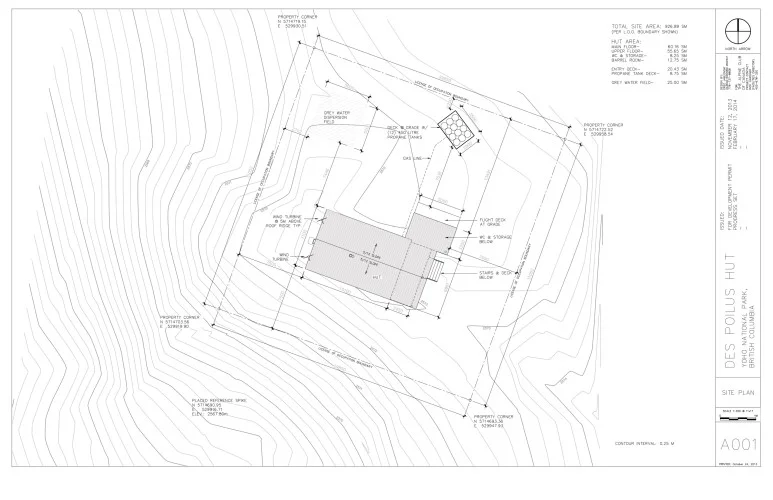
Site Plan

Louise & Richard Guy Hut – Site Plan.

Louise & Richard Guy Hut – Site Plan.

The site plan above shows the overall layout of the hut and the area of our license of operation in Yoho Park. The hut is shown, as is the connected outhouse and barrel storage area, the propane storage to the north and the grey water dispersion field.

Grey Water Dispersion Field

The grey water field was installed last summer, so technically we can say that we’ve broken ground on the hut. In addition to getting a head start on the whole project, that digging gave us a lot of information about the terrain into which we’ll be planting the hut foundation.

Keep in mind that these are not final blueprints, so there might be some minor changes, but largely, this is what we’re building this summer.

Guy Hut Updates

We'll continue to update our community on this project right through the ribbon cutting in September. Our next project update will be about the construction process – what we’ve accomplished and our timeline for this summer’s build.

Des-Poilus-Hut-South-low-res-941x500.jpg

Situated at the midway point between the Bow and Stanley Mitchell Huts, the Louise & Richard Guy Hut will provide the missing link along the world-class Bow-Yoho ski traverse, and will offer visitors an exciting and challenging new hut-to-hut ski experience.

Slated for construction in summer 2015, the ACC is seeking $500,000 in community support to build the brand new Louise & Richard Guy Hut at Mont des Poilus. 


 
HutsGuest User2 Comments